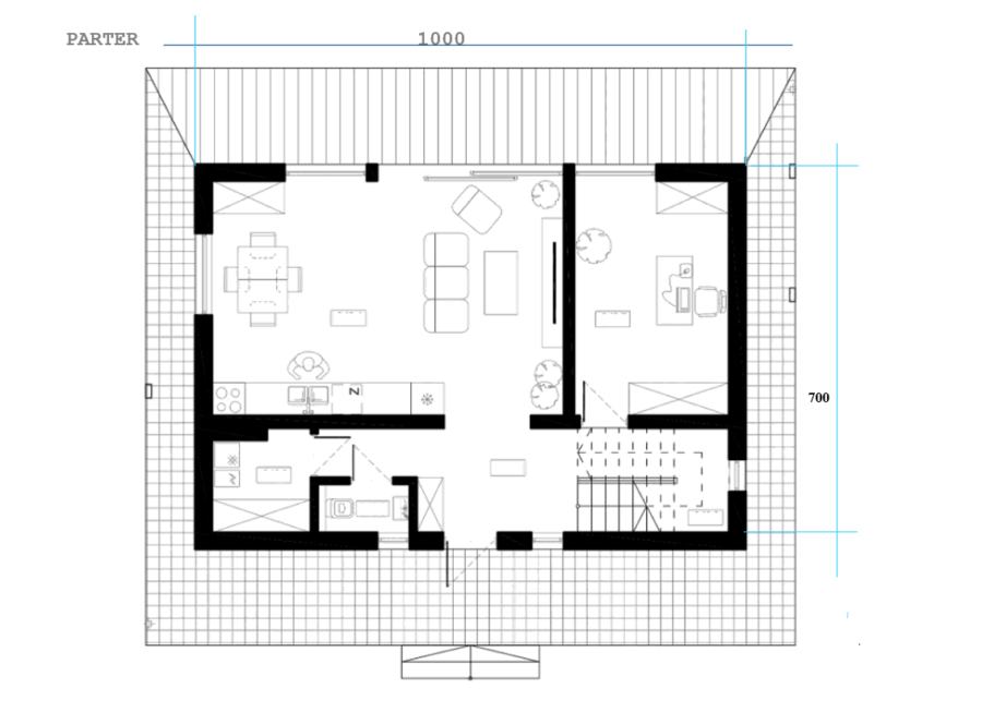
Kubuś drewniany70 m²Od 280000 PLNProjekt Kubuś 2 drewniany to parterowy dom jednorodzinny z poddaszem użytkowym, charakteryzujący się prostą, ekonomiczną w budowie bryłą o powierzchni użytkowej ok. 90m² oraz kącie nachylenia dachu 45°. Wyróżnia się nowoczesną estetyką, tynk z drewnianymi elementami elewacji, idealny dla 4-5 osobowej rodziny. Na poddaszu są 3 pokoje + dodatkowa łazienka. To idealna propozycja dla poszukujących małego, ale funkcjonalnego domu. Stan surowy zamknięty: • Materiały wraz z robocizną • Konstrukcja budynku • Belki stropowe • Ściany wewnętrzne nośne • Konstrukcja dachu, krokwie, membrana, kontr łaty, łaty • Pokrycie dachu blachodachówką • Montaż blaszanych parapetów zewnętrznych • Stolarka okienna trzyszybowa, obustronny kolor • Orynnowanie systemem stalowym • Drzwi zewnętrzne wraz z montażem • Parapety zewnętrzne metalowe 280 000 zł + VAT 302 400 zł Powierzchnia zabudowy 70 m² Liczba pokoi 4+ salon Powierzchnia użytkowa 93,26 m² Liczba łazienek 2 Powierzchnia całkowita 193,90 m² Kuchnia Tak Wysokość budynku 7,95 m Kąt nachylenia dachu 45° Konfiguracja Odległość do miejsca montażu Sprawdź dokładną odległość od swojej działki do naszej firmy wpisując swoją lokalizację w mapach.Po kliknięciu sprawdź odległość mapa otworzy się w nowym oknie przeglądarki. Następnie podaj liczbę kilometrów w polu poniżej. Sprawdź odległość Podaj odległość (km): Podsumowanie ceny: 0,00 PLN Informacja ta nie jest ofertą w rozumieniu przepisów kodeksu cywilnego, stanowi wyłącznie informacje handlowe. Przedstawione w niej wyliczenia mają charakter przykładowy i nie stanowią podstawy do jakichkolwiek roszczeń. Zastrzegamy sobie, że kwoty wskazane wyżej mogą ulec zmianie na skutek uwarunkowań technicznych oraz zindywidualizowanych warunków określonej inwestycji. Zapisz konfigurację Suma: 0,00 PLN